Thiết kế một nhà xưởng nhỏ tưởng đơn giản nhưng lại đòi hỏi sự chính xác và tối ưu cao độ. Một bản vẽ chất lượng không chỉ giúp tiết kiệm chi phí mà còn đảm bảo quá trình thi công diễn ra suôn sẻ. Trong bài viết này, chúng tôi sẽ giới thiệu đến bạn những mẫu bản vẽ nhà xưởng nhỏ chi tiết, thực tế và dễ áp dụng – nguồn tài liệu hữu ích cho mọi chủ đầu tư đang tìm kiếm giải pháp không gian hiệu quả.

MỤC LỤC
- 1 Vai trò và tầm quan trọng của bản vẽ nhà xưởng nhỏ trong thi công nhà xưởng
- 2 Các loại bản vẽ nhà xưởng nhỏ phổ biến
- 3 Các hạng mục chính trong bản vẽ nhà xưởng nhỏ
- 4 Tiêu chuẩn thiết kế bản vẽ nhà xưởng nhỏ
- 5 Quy trình thiết kế và triển khai bản vẽ nhà xưởng nhỏ
- 6 Những sai lầm thường gặp khi thiết kế bản vẽ nhà xưởng nhỏ
Vai trò và tầm quan trọng của bản vẽ nhà xưởng nhỏ trong thi công nhà xưởng
Bản vẽ nhà xưởng nhỏ không chỉ là tài liệu kỹ thuật thể hiện mặt bằng, kết cấu và kiến trúc công trình, mà còn là công cụ cốt lõi giúp tối ưu chi phí, đảm bảo thi công đúng tiến độ và an toàn.
Một bản vẽ nhà xưởng tiền chế hay nhà xưởng thép nhỏ được thiết kế đúng kỹ thuật sẽ hỗ trợ chủ đầu tư và đơn vị thi công tránh sai sót, từ đó rút ngắn thời gian xây dựng và giảm thiểu phát sinh chi phí.
Vai trò thiết yếu của bản vẽ nhà xưởng nhỏ:
- Định hình tổng thể kiến trúc: Từ mặt bằng công năng, chiều cao, đến vị trí cột, dầm, hệ thống cửa ra vào, mái che…
- Căn cứ triển khai thi công: Mọi hạng mục kỹ thuật như hệ kết cấu thép, móng, nền, điện – nước… đều phải bám sát bản vẽ.
- Tối ưu hóa không gian sử dụng: Giúp tận dụng diện tích hợp lý cho nhà kho, khu sản xuất, văn phòng…
- Dự toán và kiểm soát chi phí: Bản vẽ càng chi tiết, dự toán càng sát thực tế, hạn chế phát sinh.
- Hợp thức hóa hồ sơ pháp lý: Cần thiết để xin giấy phép xây dựng và nghiệm thu công trình.

Các loại bản vẽ nhà xưởng nhỏ phổ biến
Phân loại theo công năng
Tùy vào chức năng chính, bản vẽ nhà xưởng nhỏ được chia thành nhiều loại nhằm tối ưu công năng và chi phí đầu tư.
Xưởng sản xuất quy mô nhỏ
Dạng bản vẽ này phổ biến trong các ngành may mặc, thực phẩm, chế tạo thủ công… Điểm đặc trưng là cần bố trí dây chuyền sản xuất hợp lý, không gian thoáng và lối di chuyển linh hoạt cho công nhân. Với diện tích từ 100m² đến 300m², phương án thiết kế thường chọn nhà xưởng tiền chế hoặc kết cấu khung thép để đẩy nhanh tiến độ.
Kho hàng mini
Đây là các bản vẽ nhà kho nhỏ được thiết kế để tối ưu không gian lưu trữ, thường sử dụng kết cấu đơn giản, mái cao và hệ thống cửa cuốn lớn. Loại nhà xưởng này yêu cầu sự linh hoạt trong chia khoang, đảm bảo thông gió và chịu tải sàn tốt.
Xưởng gia công đơn giản
Dành cho các cơ sở gia công cơ khí, gỗ, nhựa, nơi máy móc chiếm diện tích lớn. Bản vẽ cần đáp ứng yếu tố chịu lực, thông thoáng, cách âm tốt. Kết cấu khung thép tiền chế hoặc khung bê tông kết hợp tường gạch thường được sử dụng để tiết kiệm chi phí xây dựng.
Phân loại theo vật liệu
Việc lựa chọn vật liệu ảnh hưởng trực tiếp đến chi phí xây dựng, thời gian thi công và độ bền công trình. Dưới đây là ba giải pháp kết cấu phổ biến trong các bản vẽ nhà xưởng nhỏ.

Nhà xưởng tiền chế khung thép
Loại hình này đang được ưa chuộng nhờ thời gian thi công nhanh, dễ mở rộng hoặc tháo lắp. Kết cấu khung kèo thép giúp giảm tải trọng, tiết kiệm móng. Đây là phương án lý tưởng cho các nhà xưởng nhỏ dưới 300m².
Nhà xưởng bê tông cốt thép
Mặc dù chi phí cao hơn, loại kết cấu này phù hợp với các nhà xưởng yêu cầu độ bền cao, chống cháy tốt và chịu lực lâu dài. Bản vẽ thường tích hợp hệ khung cột dầm bê tông, tường gạch, mái tole cách nhiệt hoặc tấm panel.
Kết hợp khung thép và tường xây
Đây là dạng bản vẽ lai giữa nhà tiền chế và truyền thống. Khung chính bằng thép, còn phần tường xây bằng gạch để tăng khả năng cách nhiệt, cách âm. Phương án này cân bằng giữa chi phí và độ bền, phù hợp với các xưởng nhỏ làm việc trong môi trường có tiếng ồn hoặc nhiệt cao.
Phân loại theo diện tích
Diện tích sử dụng là yếu tố định hình bố cục bản vẽ nhà xưởng. Dưới đây là ba nhóm diện tích thường gặp trong thực tế:
Bản vẽ nhà xưởng dưới 100m2
Những nhà xưởng mini như thế này thường phục vụ mục đích cá nhân, kho chứa đơn giản hoặc xưởng thử nghiệm. Thiết kế cần tối giản hóa để tận dụng không gian hiệu quả, thường chỉ gồm một khối công trình chính với mái dốc hoặc mái bằng. Phương án nhà tiền chế là lựa chọn tối ưu để tiết kiệm thời gian và chi phí.

Bản vẽ nhà xưởng từ 100–300m2
Đây là nhóm phổ biến nhất trong phân khúc nhà xưởng nhỏ. Có thể chia thành nhiều khu chức năng: sản xuất, kho, khu vực kỹ thuật… Thiết kế thường chú trọng luồng di chuyển, hệ thống thông gió và chiếu sáng tự nhiên. Bản vẽ thường đi kèm các hạng mục phụ trợ như phòng bảo vệ, khu WC, sân bãi.
Một số mẫu tiêu biểu trong nhóm này bao gồm:
- Bản vẽ nhà xưởng 100m2: thường dùng cho kho hàng, xưởng lắp ráp nhỏ.
- Bản vẽ nhà xưởng 10x20m: diện tích 200m², đủ để bố trí khu sản xuất + kho chứa.
- Bản vẽ nhà xưởng 12m mặt tiền: thường kết hợp chiều sâu 15–25m tùy nhu cầu.
Bản vẽ nhà xưởng trên 300m2 (nhưng vẫn được xem là “nhỏ”)
Các nhà xưởng trong tầm 300–500m² phù hợp cho doanh nghiệp vừa khởi nghiệp. Tuy là diện tích lớn hơn, nhưng vẫn nằm trong nhóm nhà xưởng nhỏ nếu xét theo quy mô công nghiệp. Bản vẽ trong nhóm này thường có thêm các không gian phụ như văn phòng, phòng họp, nhà vệ sinh tách biệt và khu vực sân bãi.
Lưu ý: Dù diện tích thay đổi, các yếu tố như chiều cao thông thủy, lối đi cho xe nâng, vị trí cấp điện – thoát nước và thông gió vẫn cần được cân nhắc kỹ trong bản vẽ kỹ thuật.

Các hạng mục chính trong bản vẽ nhà xưởng nhỏ
Khi triển khai bản vẽ nhà xưởng nhỏ, cần đảm bảo các hạng mục kỹ thuật cốt lõi nhằm tối ưu công năng sử dụng, đảm bảo an toàn và phù hợp pháp lý. Dưới đây là các thành phần bắt buộc trong hồ sơ thiết kế nhà xưởng quy mô nhỏ, đặc biệt quan trọng với các nhà xưởng sản xuất nhẹ, kho chứa hoặc xưởng gia công cơ bản.
Những bản vẽ chính bao gồm:
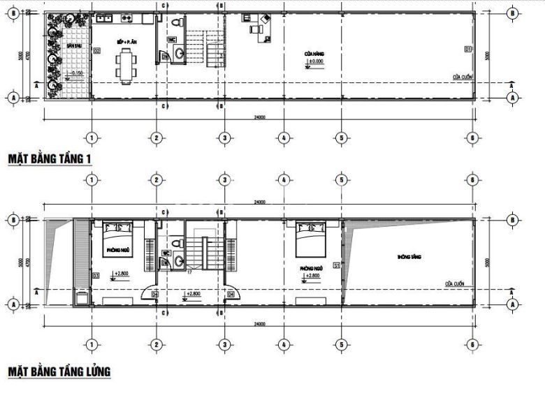
- Bản vẽ kiến trúc tổng thể: Thể hiện mặt bằng tổng thể công trình trên khu đất, bao gồm ranh giới, hướng tiếp cận, diện tích xây dựng, khu vực cây xanh và bãi xe. Đây là cơ sở định hình bố cục và quy hoạch công năng.
- Bản vẽ mặt bằng công năng: Phân chia cụ thể các khu vực như khu sản xuất, kho chứa, khu kỹ thuật, văn phòng (nếu có). Thiết kế tối ưu mặt bằng giúp dòng di chuyển vật tư và nhân sự hợp lý, giảm chi phí vận hành.
- Bản vẽ kết cấu: Gồm móng (đơn, băng hoặc cọc), khung thép hoặc bê tông cốt thép, hệ mái. Với nhà xưởng nhỏ, kết cấu nhẹ và tiền chế thường được ưu tiên để giảm chi phí và thời gian thi công.
- Bản vẽ điện – nước: Bố trí hệ thống điện chiếu sáng, ổ cắm công nghiệp, tủ điện, đường dây chính – phụ và hệ thống cấp thoát nước. Thiết kế cần đáp ứng tiêu chuẩn kỹ thuật và an toàn lao động.
- Bản vẽ PCCC (nếu cần): Áp dụng với nhà xưởng có yêu cầu đặc biệt theo quy định pháp luật, bao gồm hệ thống bình chữa cháy, báo cháy, lối thoát hiểm.
- Bản vẽ nội thất (nếu có văn phòng): Bố trí bàn ghế, khu tiếp khách, phòng họp, tủ tài liệu… giúp không gian làm việc tiện nghi và chuyên nghiệp.

Tiêu chuẩn thiết kế bản vẽ nhà xưởng nhỏ
Yêu cầu kỹ thuật trong thiết kế bản vẽ nhà xưởng nhỏ không chỉ đảm bảo vận hành hiệu quả mà còn phải tuân thủ đầy đủ các quy định pháp luật và an toàn. Dưới đây là những tiêu chuẩn cốt lõi cần lưu ý khi lập bản vẽ cho nhà xưởng quy mô nhỏ:
Những tiêu chí kỹ thuật bắt buộc
- Chiều cao tối thiểu: Theo TCVN 4604:2012, nhà xưởng 1 tầng phải có chiều cao từ 3.6m trở lên (tính từ sàn đến đỉnh mái).
- Hệ thống chiếu sáng & thông gió: Phải đảm bảo ánh sáng tự nhiên ≥10% diện tích nền xưởng; thông gió tự nhiên hoặc cơ học đủ lưu lượng (≥3 lần/giờ).
- Khoảng cách PCCC: Khoảng cách giữa các xưởng hoặc giữa xưởng và công trình lân cận phải ≥6m; hành lang thoát hiểm ≥1.2m; lối ra vào tối thiểu 2 cửa có chiều rộng từ 1.2m trở lên.
- Nền móng & vật liệu: Sử dụng móng đơn, móng băng cho đất tốt; nền bê tông ≥100mm, độ dốc thoát nước ≥1%; vật liệu chịu lửa, hạn chế ăn mòn, dễ vệ sinh.
- Quy định pháp lý: Bắt buộc có giấy phép xây dựng và hồ sơ thiết kế kỹ thuật được cơ quan chức năng thẩm định nếu tổng diện tích sàn >500m² hoặc có tầng lửng, tầng kỹ thuật.
Quy trình thiết kế và triển khai bản vẽ nhà xưởng nhỏ
Để xây dựng một bản vẽ nhà xưởng nhỏ vừa chính xác vừa tối ưu công năng sử dụng, việc thực hiện theo đúng quy trình thiết kế là điều bắt buộc. Dưới đây là các giai đoạn cốt lõi giúp đảm bảo hồ sơ thiết kế đạt yêu cầu kỹ thuật, phù hợp ngân sách và đáp ứng nhu cầu vận hành thực tế.
- Đánh giá hiện trạng mặt bằng:
Tiến hành khảo sát địa hình, kiểm tra nền đất, hạ tầng kỹ thuật (điện, nước, giao thông), diện tích thực tế… Đây là cơ sở để định hướng thiết kế nhà xưởng nhỏ phù hợp địa thế và nhu cầu sử dụng. - Xác định yêu cầu công năng:
KTS và kỹ sư phối hợp với chủ đầu tư để làm rõ mục đích sử dụng (sản xuất, kho chứa, kết hợp văn phòng…), lưu lượng người – hàng hóa, tiêu chuẩn kỹ thuật và các yếu tố đặc thù như thông gió, ánh sáng, PCCC. - Lên sơ đồ mặt bằng sơ bộ:
Đề xuất phương án mặt bằng công năng, phân chia khu vực sản xuất, kho, văn phòng, vệ sinh, lối thoát hiểm… Dựa trên bản vẽ này để tinh chỉnh và lựa chọn phương án tối ưu. - Hoàn thiện bản vẽ kỹ thuật chi tiết:
Thể hiện đầy đủ kiến trúc, kết cấu, điện, nước, hệ thống cơ điện… Bản vẽ này là căn cứ chính để thi công và dự toán chi phí. - Bóc tách khối lượng – lập dự toán:
Từ bản vẽ chi tiết, tiến hành tính toán khối lượng vật tư, nhân công, máy móc… để lập bảng dự toán tổng chi phí xây dựng nhà xưởng nhỏ. - Hoàn thiện thủ tục pháp lý:
Trong một số trường hợp (như xây dựng trong khu dân cư hoặc khu công nghiệp chưa có quy hoạch), cần xin giấy phép xây dựng hoặc thẩm duyệt bản vẽ theo quy định pháp luật.

>>> Xem thêm: Tổng hợp các mẫu cổng nhà xưởng Đẹp – Bền – Giá tốt nhất 2025
Những sai lầm thường gặp khi thiết kế bản vẽ nhà xưởng nhỏ
Trong quá trình thiết kế bản vẽ nhà xưởng nhỏ, nhiều chủ đầu tư và đơn vị thi công dễ mắc phải một số sai lầm cơ bản nhưng ảnh hưởng lâu dài đến hiệu quả sử dụng và chi phí vận hành. Dưới đây là những lỗi phổ biến cần tránh:
- Thiếu bản vẽ kết cấu chi tiết: Một số bản vẽ nhà xưởng tiền chế hoặc xưởng sản xuất nhỏ chỉ tập trung vào mặt bằng, bỏ qua cấu kiện như móng, khung thép, vì kèo, khiến thi công bị gián đoạn hoặc phát sinh thêm chi phí.
- Bỏ qua yếu tố thông gió và kiểm soát nhiệt: Nhà xưởng nhỏ thường giới hạn diện tích, nếu không tối ưu hệ thống thông gió tự nhiên hoặc cơ học sẽ dẫn đến tích nhiệt, ảnh hưởng sức khỏe công nhân và chất lượng lưu trữ.
- Không tính toán phương án mở rộng: Nhiều chủ đầu tư không để dư không gian kết cấu hoặc không quy hoạch hạ tầng dự phòng (điện, nước, giao thông nội bộ), khiến việc mở rộng sau này tốn kém và phức tạp.
- Sao chép bản vẽ mẫu không phù hợp: Việc lấy bản vẽ nhà xưởng nhỏ đã có trên mạng và áp dụng cứng nhắc mà không khảo sát thực tế vị trí, công năng hoặc quy mô vận hành thường dẫn đến bất cập trong sử dụng lâu dài.
Một bản vẽ nhà xưởng nhỏ phù hợp chính là nền tảng cho sự vận hành trơn tru và phát triển bền vững của doanh nghiệp. Hãy chọn giải pháp thiết kế phù hợp nhất với nhu cầu thực tế của bạn, và đừng ngần ngại đầu tư vào một bản vẽ thông minh ngay từ đầu để tiết kiệm thời gian, chi phí và công sức trong tương lai.



